太灵通论坛

标题: 定了!泰州海陵区2022年十大民生实事项目发布! [打印本页]

作者: 执扇问佳人    时间: 2022-1-30 23:34
标题: 定了!泰州海陵区2022年十大民生实事项目发布!
1月25日,泰州市人民政府网站发布《海陵区谋定2022年十大民生实事项目》,涉及义务教育、医疗卫生、城市建设、文体旅游、社会治理和就业保障六大方面。
据了解,2022年海陵区政府民生实事项目编排,重点遵循普惠性、可行性、时效性三大原则。所有项目要求当年见效,力争在三季度末基本完成,让群众有实实在在的获得感。

一、泰州二中附属初中综合教学楼建成并投入使用。

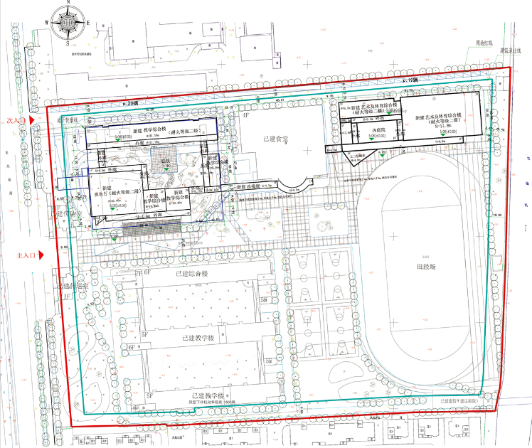
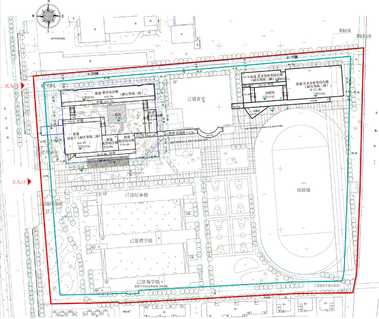
2021年9月8日,泰州自然资源和规划局发布《泰州市第二中学附属初中改扩建工程》批前规划。


根据公示牌,泰州市第二中学附属初中有已建的综合楼、教学楼、食堂、传达室等。


项目将于原址新建教学综合楼、报告厅、艺术及体育综合楼等。
据了解,二附中改扩建工程,总投资8000万元,新增建筑面积1.3万方,新增学位900个。



二、完成海陵全区义务教育学校所有教室灯光照明“护眼”改造;

为困境青少年免费提供视力检测、配镜;
为低保困难家庭少年儿童免费建立视力健康档案,提供近视防控指导和后续训练、矫正。

三、海陵区区公共卫生服务中心建成并投入使用;

城中街道社区卫生服务中心完成改造并投入使用;
在全区实施适老化改造200户,对九龙敬老院基础设施进行改造提升。
2021年8月份,海陵区公共卫生服务中心成功封顶,预计2022年建成投入使用。
项目总建筑面积17500平方米,融疾病预防控制、妇幼健康、卫生监督、卫生应急指挥、应急物资储备、医养康养等于一体。


内部效果图:会议室

四、配置1辆70米登高平台消防车;

为海陵全区842幢高层建筑安装智能监测系统,对高层建筑消火栓水压进行实时监控。

五、对10个老旧小区进行停车位改扩、内外墙出新、监控安装、绿化提升、路灯维修、杆线入地等改造;

完成义学巷、靶场小巷、斗鸡场巷等7条老街巷整治。

六、完成林湖郡、梅兰坊等洼地防涝改造。

七、在韵梅苑、泰来苑、花园半岛、朝晖锦苑和金东花园等5个小区试点建设电动车集中充电车棚。

八、罗浮山体育公园建成并投入使用;

新(改)建健身路径30处。


九、区域社会治理现代化指挥中心建成并投入使用;

新建技防小区118个。

十、新增就业6000人,扶持创业1200人,技能培训1500人。


作者: 艾斯寂寞    时间: 2022-1-31 00:30
,,
作者: 艾斯寂寞    时间: 2022-1-31 00:30
??
作者: 艾斯寂寞    时间: 2022-1-31 00:30
??
作者: 艾斯寂寞    时间: 2022-1-31 00:30
海陵区2022年十大民生实事项目发布
作者: 艾斯寂寞    时间: 2022-1-31 00:31

作者: 艾斯寂寞    时间: 2022-1-31 00:31
海陵区2022年十大民生实事项目发布
作者: 艾斯寂寞    时间: 2022-1-31 00:31

作者: 艾斯寂寞    时间: 2022-1-31 00:31
海陵区2022年十大民生实事项目发布
作者: 艾斯寂寞    时间: 2022-1-31 00:31

作者: 艾斯寂寞    时间: 2022-1-31 00:31
,,
作者: 艾斯寂寞    时间: 2022-1-31 00:31
海陵区2022年十大民生实事项目发布
作者: 艾斯寂寞    时间: 2022-1-31 00:32
海陵区2022年十大民生实事项目发布
作者: 艾斯寂寞    时间: 2022-1-31 00:32
海陵区2022年十大民生实事项目发布
作者: 琢磨    时间: 2022-1-31 10:19

作者: 苏浅浅    时间: 2022-1-31 11:45

作者: 座右铭    时间: 2022-1-31 15:17
都是实事。
作者: 汤成霞    时间: 2022-1-31 15:26
收到
作者: 村霸动吧    时间: 2022-1-31 16:34
新年快乐
作者: 爱在深我    时间: 2022-1-31 18:44
知道了
作者: 爱在深我    时间: 2022-1-31 18:44

作者: 爱在深我    时间: 2022-1-31 18:44

作者: wjj690619    时间: 2022-1-31 19:04

作者: wjj690619    时间: 2022-1-31 19:06
海陵区2022年十大民生实事项目
作者: 十八子之井    时间: 2022-1-31 20:46
知道
作者: tlt115629    时间: 2022-1-31 20:56
收到
作者: 雨涵宝宝    时间: 2022-1-31 21:12
知道了
作者: 雨涵宝宝    时间: 2022-1-31 21:15

作者: 雨涵宝宝    时间: 2022-1-31 21:15
了解
作者: 辰东    时间: 2022-1-31 21:18
了解
作者: 辰东    时间: 2022-1-31 21:18
早点实施
作者: 甜蜜的夏天^_^    时间: 2022-1-31 21:25
知道了
作者: 甜蜜的夏天^_^    时间: 2022-1-31 21:25

作者: 甜蜜的夏天^_^    时间: 2022-1-31 21:26
了解
作者: 怀旧曾经    时间: 2022-1-31 21:29
知道了
作者: 怀旧曾经    时间: 2022-1-31 21:29
了解
作者: 怀旧曾经    时间: 2022-1-31 21:30

作者: 阿莲娜    时间: 2022-1-31 21:48
收到
作者: 阿莲娜    时间: 2022-1-31 21:48
点赞
作者: 处处xmr    时间: 2022-1-31 22:11
好项目
作者: xx龙在江湖xx    时间: 2022-1-31 22:41
知道
作者: 风之子ZXB    时间: 2022-1-31 23:22

作者: gugu670101    时间: 2022-2-1 12:55
知道了
作者: 1505281590    时间: 2022-2-1 14:44
0k
作者: 1505281590    时间: 2022-2-1 14:44
赞赞赞
作者: 猪猪侠的历险记    时间: 2022-2-1 14:58

作者: 爱在深我    时间: 2022-2-1 15:12

作者: 爱在深我    时间: 2022-2-1 15:13
知道了
作者: 爱在深我    时间: 2022-2-1 15:13

作者: 爱在深我    时间: 2022-2-1 15:13
收到
作者: Tangchengxia    时间: 2022-2-1 15:48
收到
作者: 念与若斯    时间: 2022-2-1 16:27

作者: 凤儿凤儿    时间: 2022-2-1 17:13
收到
作者: 苏浅浅    时间: 2022-2-1 22:19

作者: 老刀郎    时间: 2022-2-1 23:44

作者: 艾斯寂寞    时间: 2022-2-1 23:51
。。
作者: 艾斯寂寞    时间: 2022-2-1 23:51

作者: gugu670101    时间: 2022-2-2 07:44
知道了
作者: 泰郎    时间: 2022-2-2 08:37

作者: 毛桂琴    时间: 2022-2-2 11:48
了解
作者: 爱在深我    时间: 2022-2-2 12:42

作者: 爱在深我    时间: 2022-2-2 12:43
知道了
作者: 苏浅浅    时间: 2022-2-2 13:38

作者: 阿莲娜    时间: 2022-2-2 14:26
点赞
作者: 流浪泰州    时间: 2022-2-2 22:02

作者: 汤成霞    时间: 2022-2-4 14:09
收到
作者: 傻子傻    时间: 2022-2-4 19:11
知道了




欢迎光临 太灵通论坛 (http://bbs.tlt.cn/) Powered by Discuz! X3.2