太灵通论坛

标题: 获证!泰州这所高级中学新校区…… [打印本页]

作者: 饼将军来比一比    时间: 2024-7-11 08:53
标题: 获证!泰州这所高级中学新校区……
7月8日,泰州市自然资源和规划局发布了两所学校的建设用地规划许可证,涉及高新区高级中学工程项目和田河中小学异地重建项目。




01
高新区高级中学工程项目

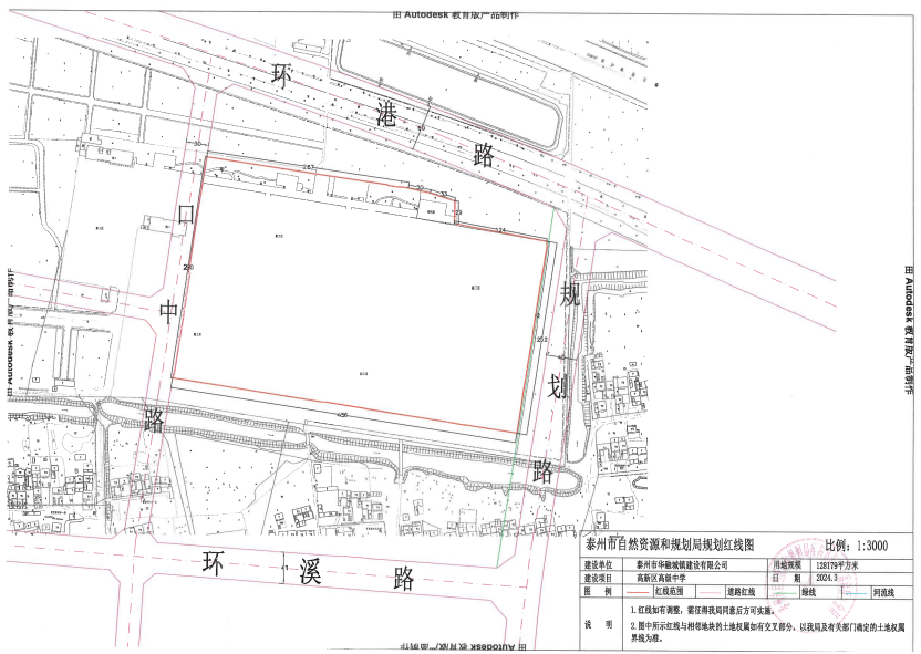
△高新区高级中学工程项目用地红线图
根据项目建设用地规划许可证,高新区高级中学工程项目位于泰州市高港区许庄街道曹官营社区境内,具体位置为医药高新区(高港区)环港大道南侧、高港大道东侧,泰州市港城驾驶员培训中心地块。用地总面积128179平方米,总建筑面积119000平方米,土地取得方式为划拨。

高新区高级中学,即江苏省口岸中学新校区,由市、区两级协同共建,总投资约10亿,规划用地约193.2亩,总建筑面积11.15万平方米。项目建成后,预计总办学规模为20轨行政班(含3轨新疆班)共60个班级。

校区将按照江苏省高品质示范高中建设要求,建设教学楼、实验综合楼、行政办公楼、图文信息中心、课程基地、报告厅、风雨操场、食堂、宿舍楼等设施。项目建成后,将对原口岸中学进行整体搬迁。


02
田河中小学异地重建项目

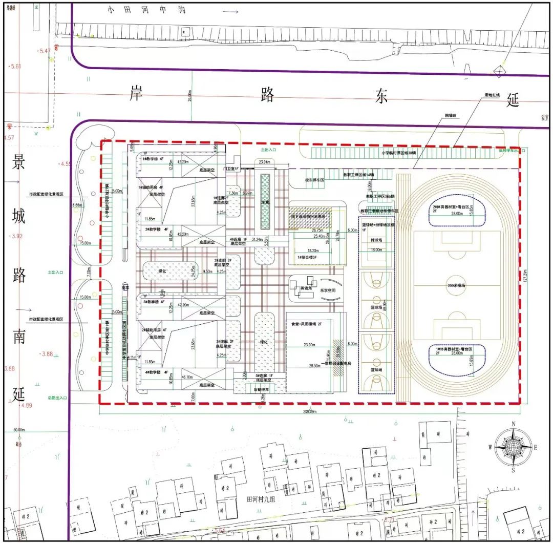
△田河中小学异地重建项目红线图
根据项目建设用地规划许可证,田河中小学异地重建项目位于泰州医药高新区(高港区)口岸街道田河社区境内,具体位置为口岸街道景城路南延东侧、水岸路东延南侧。用地总面积26906平方米,总建筑面积16260平方米,土地取得方式为划拨。

根据前期的规划公示,该项目规划建设教学楼、综合楼、英语角、乐学空间、食堂+风雨操场、篮球场、排球场、250米操场等设施。

根据2022年4月的批复, 项目占地面积约27000平方米,建筑面积约13000平方米,拟建规模为小学3轨18班、初中2轨6班。






欢迎光临 太灵通论坛 (http://bbs.tlt.cn/) Powered by Discuz! X3.2