太灵通论坛

标题: 中标!关于泰州这所学校...... [打印本页]

作者: 山晓望晴空    时间: 2024-9-11 09:04
标题: 中标!关于泰州这所学校......
9月6日,泰州市公共资源交易平台发布《泰州市姜堰区少年儿童业余体校场馆建设项目》中标结果公告,江苏圣达建设集团有限公司9003723.86元中标。






根据招标公告,项目地点泰州市姜堰区

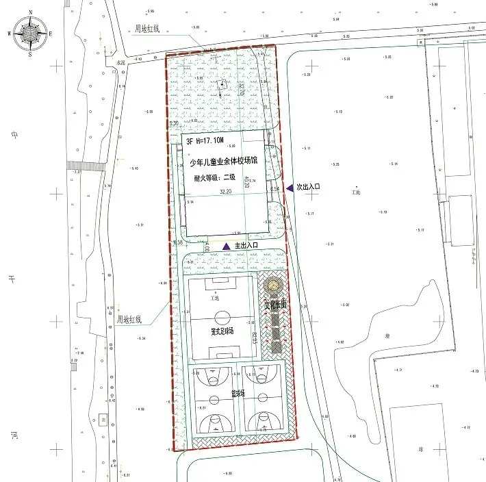
工程规模:本项目用地面积7076.11平方米,总建筑面积3946.98平方米,建筑占地面积1306.08平方米。

本次拟建少年儿童业余体校场馆一座,共三层,一层为跆拳道馆、运动员小餐厅、厨房操作间,二层为大餐厅,三层为室内运动场(篮球场、羽毛球场、排球场)、运动员淋浴房、运动员自习室、卫生间等。




7月2日,泰州市自然资源和规划局姜堰分局对姜堰区第二实验小学教育集团淮海校区少年儿童业余体校场馆项目规划方案进行批前公示。





根据公示信息,项目位于姜堰区第二实验小学淮海校区西侧。建设单位为姜堰区第二实验小学教育集团淮海校区




该项目位于二实小淮海校区校园的西北角,现篮球场及笼式足球场的北侧。





如今,少年儿童业余体校场馆建设项目中标结果公告发布,预计很快就会正式动工。一起期待!







欢迎光临 太灵通论坛 (http://bbs.tlt.cn/) Powered by Discuz! X3.2