太灵通论坛

标题: 批前公示!这里新添一处文化休闲设施项目...... [打印本页]

作者: 山晓望晴空    时间: 2024-9-19 09:14
标题: 批前公示!这里新添一处文化休闲设施项目......
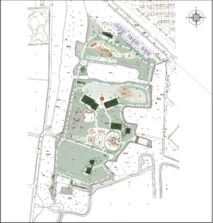
9月2日,泰州市自然资源和规划局发布姜堰区溱潼镇湖南村文化休闲设施项目的规划批前公示。





项目位置:姜堰区溱潼镇湖南村
建设单位:泰州市姜堰区溱潼镇湖南村股份经济合作社




根据公示信息,该项目批前公示总平面图主要针对用地红线范围内建筑层数、建筑高度、建筑功能、相邻建筑间距、主要道路以及围墙等刚性内容进行公示。










欢迎光临 太灵通论坛 (http://bbs.tlt.cn/) Powered by Discuz! X3.2