太灵通论坛

 找回密码
 注册

QQ登录

只需一步,快速开始

查看: 3170|回复: 0
打印 上一主题 下一主题

[聚焦民生] 批前公示!这里新添一处文化休闲设施项目......

[复制链接]

该用户从未签到

跳转到指定楼层
楼主
发表于 2024-9-19 09:14 | 只看该作者 |只看大图 回帖奖励 |倒序浏览 |阅读模式 | 来自江苏
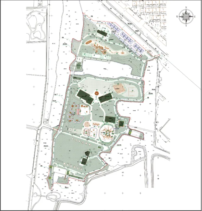
9月2日,泰州市自然资源和规划局发布姜堰区溱潼镇湖南村文化休闲设施项目的规划批前公示。





项目位置:姜堰区溱潼镇湖南村
建设单位:泰州市姜堰区溱潼镇湖南村股份经济合作社




根据公示信息,该项目批前公示总平面图主要针对用地红线范围内建筑层数、建筑高度、建筑功能、相邻建筑间距、主要道路以及围墙等刚性内容进行公示。





分享到:  QQ好友和群QQ好友和群 QQ空间QQ空间 腾讯微博腾讯微博 腾讯朋友腾讯朋友
收藏收藏 分享分享 支持支持 反对反对
您需要登录后才可以回帖 登录 | 注册

本版积分规则

公司信息
关于我们
诚聘英才
网站声明
xml地图
用户帮助
会员规则
商务合作
合作方式
商家入驻
联系我们
获取更新
新浪微博
腾讯微博
手机客户端二维码
太灵通微信二维码
泰州 | 房产 | 家装 | 美食 | 论坛 |
关于我们 | 合作方式 | 诚聘英才 | 网站声明 | 联系我们 | 访问统计
Copyright © 2009 - 2019 泰州未来网络科技有限公司. All Rights Reserved
增值电信业务经营许可证:苏B2-20190103 苏ICP备18045299号
太灵通常年法律顾问:江苏戴维律师事务所 陈东 律师 15240200003
网警 信息监察 不良举报