太灵通论坛

 找回密码
 注册

QQ登录

只需一步,快速开始

查看: 2992|回复: 0
打印 上一主题 下一主题

[聚焦民生] 中标!关于泰州这所学校......

[复制链接]

该用户从未签到

跳转到指定楼层
楼主
发表于 2024-9-11 09:04 | 只看该作者 |只看大图 回帖奖励 |倒序浏览 |阅读模式 | 来自江苏
9月6日,泰州市公共资源交易平台发布《泰州市姜堰区少年儿童业余体校场馆建设项目》中标结果公告,江苏圣达建设集团有限公司9003723.86元中标。






根据招标公告,项目地点泰州市姜堰区

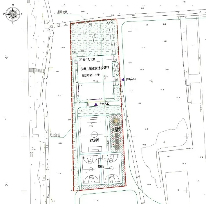
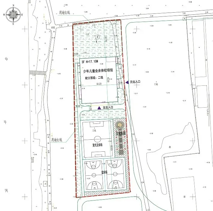
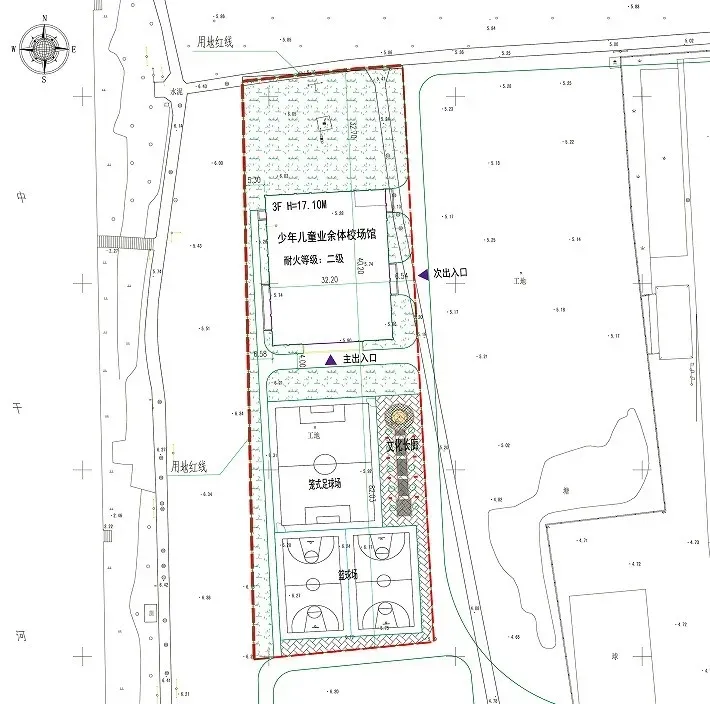
工程规模:本项目用地面积7076.11平方米,总建筑面积3946.98平方米,建筑占地面积1306.08平方米。

本次拟建少年儿童业余体校场馆一座,共三层,一层为跆拳道馆、运动员小餐厅、厨房操作间,二层为大餐厅,三层为室内运动场(篮球场、羽毛球场、排球场)、运动员淋浴房、运动员自习室、卫生间等。




7月2日,泰州市自然资源和规划局姜堰分局对姜堰区第二实验小学教育集团淮海校区少年儿童业余体校场馆项目规划方案进行批前公示。





根据公示信息,项目位于姜堰区第二实验小学淮海校区西侧。建设单位为姜堰区第二实验小学教育集团淮海校区




该项目位于二实小淮海校区校园的西北角,现篮球场及笼式足球场的北侧。





如今,少年儿童业余体校场馆建设项目中标结果公告发布,预计很快就会正式动工。一起期待!


分享到:  QQ好友和群QQ好友和群 QQ空间QQ空间 腾讯微博腾讯微博 腾讯朋友腾讯朋友
收藏收藏 分享分享 支持支持 反对反对
您需要登录后才可以回帖 登录 | 注册

本版积分规则

公司信息
关于我们
诚聘英才
网站声明
xml地图
用户帮助
会员规则
商务合作
合作方式
商家入驻
联系我们
获取更新
新浪微博
腾讯微博
手机客户端二维码
太灵通微信二维码
泰州 | 房产 | 家装 | 美食 | 论坛 |
关于我们 | 合作方式 | 诚聘英才 | 网站声明 | 联系我们 | 访问统计
Copyright © 2009 - 2019 泰州未来网络科技有限公司. All Rights Reserved
增值电信业务经营许可证:苏B2-20190103 苏ICP备18045299号
太灵通常年法律顾问:江苏戴维律师事务所 陈东 律师 15240200003
网警 信息监察 不良举报