太灵通论坛

 找回密码
 注册

QQ登录

只需一步,快速开始

查看: 13286|回复: 66
打印 上一主题 下一主题

[聚焦民生] 定了!泰州海陵区2022年十大民生实事项目发布!

  [复制链接]
  • TA的每日心情
    奋斗
    2017-5-1 09:09
  • 签到天数: 3 天

    [LV.2]偶尔看看I

    跳转到指定楼层
    楼主
    发表于 2022-1-30 23:34 | 只看该作者 |只看大图 回帖奖励 |倒序浏览 |阅读模式 | 来自江苏
    1月25日,泰州市人民政府网站发布《海陵区谋定2022年十大民生实事项目》,涉及义务教育、医疗卫生、城市建设、文体旅游、社会治理和就业保障六大方面。
    据了解,2022年海陵区政府民生实事项目编排,重点遵循普惠性、可行性、时效性三大原则。所有项目要求当年见效,力争在三季度末基本完成,让群众有实实在在的获得感。

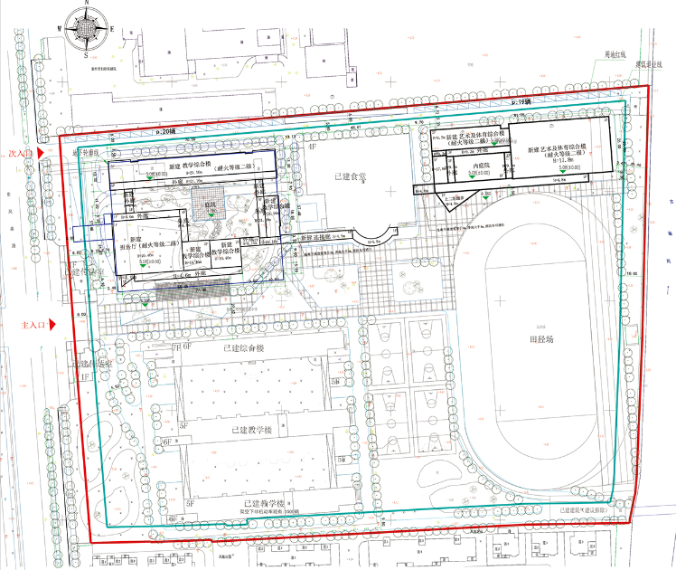
    一、泰州二中附属初中综合教学楼建成并投入使用。

    2021年9月8日,泰州自然资源和规划局发布《泰州市第二中学附属初中改扩建工程》批前规划。


    根据公示牌,泰州市第二中学附属初中有已建的综合楼、教学楼、食堂、传达室等。


    项目将于原址新建教学综合楼、报告厅、艺术及体育综合楼等。
    据了解,二附中改扩建工程,总投资8000万元,新增建筑面积1.3万方,新增学位900个。



    二、完成海陵全区义务教育学校所有教室灯光照明“护眼”改造;

    为困境青少年免费提供视力检测、配镜;
    为低保困难家庭少年儿童免费建立视力健康档案,提供近视防控指导和后续训练、矫正。

    三、海陵区区公共卫生服务中心建成并投入使用;

    城中街道社区卫生服务中心完成改造并投入使用;
    在全区实施适老化改造200户,对九龙敬老院基础设施进行改造提升。
    2021年8月份,海陵区公共卫生服务中心成功封顶,预计2022年建成投入使用。
    项目总建筑面积17500平方米,融疾病预防控制、妇幼健康、卫生监督、卫生应急指挥、应急物资储备、医养康养等于一体。


    内部效果图:会议室

    四、配置1辆70米登高平台消防车;

    为海陵全区842幢高层建筑安装智能监测系统,对高层建筑消火栓水压进行实时监控。

    五、对10个老旧小区进行停车位改扩、内外墙出新、监控安装、绿化提升、路灯维修、杆线入地等改造;

    完成义学巷、靶场小巷、斗鸡场巷等7条老街巷整治。

    六、完成林湖郡、梅兰坊等洼地防涝改造。

    七、在韵梅苑、泰来苑、花园半岛、朝晖锦苑和金东花园等5个小区试点建设电动车集中充电车棚。

    八、罗浮山体育公园建成并投入使用;

    新(改)建健身路径30处。


    九、区域社会治理现代化指挥中心建成并投入使用;

    新建技防小区118个。

    十、新增就业6000人,扶持创业1200人,技能培训1500人。

    分享到:  QQ好友和群QQ好友和群 QQ空间QQ空间 腾讯微博腾讯微博 腾讯朋友腾讯朋友
    收藏收藏 分享分享 支持支持4 反对反对

    该用户从未签到

    推荐
    发表于 2022-1-31 23:22 来自手机 | 只看该作者 | 来自江苏
    哦来自: Android客户端
    回复

    使用道具 举报

    该用户从未签到

    沙发
    发表于 2022-1-31 00:30 来自手机 | 只看该作者 | 来自江苏
    ,,来自: Android客户端
    回复

    使用道具 举报

    该用户从未签到

    板凳
    发表于 2022-1-31 00:30 来自手机 | 只看该作者 | 来自江苏
    ??来自: Android客户端
    回复

    使用道具 举报

    该用户从未签到

    地板
    发表于 2022-1-31 00:30 来自手机 | 只看该作者 | 来自江苏
    ??来自: Android客户端
    回复

    使用道具 举报

    该用户从未签到

    5#
    发表于 2022-1-31 00:30 来自手机 | 只看该作者 | 来自江苏
    海陵区2022年十大民生实事项目发布来自: Android客户端
    回复 支持 反对

    使用道具 举报

    该用户从未签到

    6#
    发表于 2022-1-31 00:31 来自手机 | 只看该作者 | 来自江苏
    ?来自: Android客户端
    回复

    使用道具 举报

    该用户从未签到

    7#
    发表于 2022-1-31 00:31 来自手机 | 只看该作者 | 来自江苏
    海陵区2022年十大民生实事项目发布来自: Android客户端
    回复 支持 反对

    使用道具 举报

    该用户从未签到

    8#
    发表于 2022-1-31 00:31 来自手机 | 只看该作者 | 来自江苏
    ,来自: Android客户端
    回复

    使用道具 举报

    该用户从未签到

    9#
    发表于 2022-1-31 00:31 来自手机 | 只看该作者 | 来自江苏
    海陵区2022年十大民生实事项目发布来自: Android客户端
    回复 支持 反对

    使用道具 举报

    该用户从未签到

    10#
    发表于 2022-1-31 00:31 来自手机 | 只看该作者 | 来自江苏
    。来自: Android客户端
    回复

    使用道具 举报

    您需要登录后才可以回帖 登录 | 注册

    本版积分规则

    公司信息
    关于我们
    诚聘英才
    网站声明
    xml地图
    用户帮助
    会员规则
    商务合作
    合作方式
    商家入驻
    联系我们
    获取更新
    新浪微博
    腾讯微博
    手机客户端二维码
    太灵通微信二维码
    泰州 | 房产 | 家装 | 美食 | 论坛 |
    关于我们 | 合作方式 | 诚聘英才 | 网站声明 | 联系我们 | 访问统计
    Copyright © 2009 - 2019 泰州未来网络科技有限公司. All Rights Reserved
    增值电信业务经营许可证:苏B2-20190103 苏ICP备18045299号
    太灵通常年法律顾问:江苏戴维律师事务所 陈东 律师 15240200003
    网警 信息监察 不良举报