太灵通论坛

 找回密码
 注册

QQ登录

只需一步,快速开始

查看: 4141|回复: 0
打印 上一主题 下一主题

[聚焦民生] 获证!泰州这所高级中学新校区……

[复制链接]

该用户从未签到

跳转到指定楼层
楼主
发表于 2024-7-11 08:53 | 只看该作者 |只看大图 回帖奖励 |倒序浏览 |阅读模式 | 来自广东
7月8日,泰州市自然资源和规划局发布了两所学校的建设用地规划许可证,涉及高新区高级中学工程项目和田河中小学异地重建项目。




01
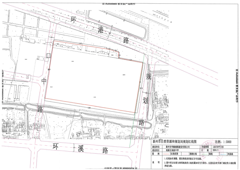
高新区高级中学工程项目

△高新区高级中学工程项目用地红线图
根据项目建设用地规划许可证,高新区高级中学工程项目位于泰州市高港区许庄街道曹官营社区境内,具体位置为医药高新区(高港区)环港大道南侧、高港大道东侧,泰州市港城驾驶员培训中心地块。用地总面积128179平方米,总建筑面积119000平方米,土地取得方式为划拨。

高新区高级中学,即江苏省口岸中学新校区,由市、区两级协同共建,总投资约10亿,规划用地约193.2亩,总建筑面积11.15万平方米。项目建成后,预计总办学规模为20轨行政班(含3轨新疆班)共60个班级。

校区将按照江苏省高品质示范高中建设要求,建设教学楼、实验综合楼、行政办公楼、图文信息中心、课程基地、报告厅、风雨操场、食堂、宿舍楼等设施。项目建成后,将对原口岸中学进行整体搬迁。


02
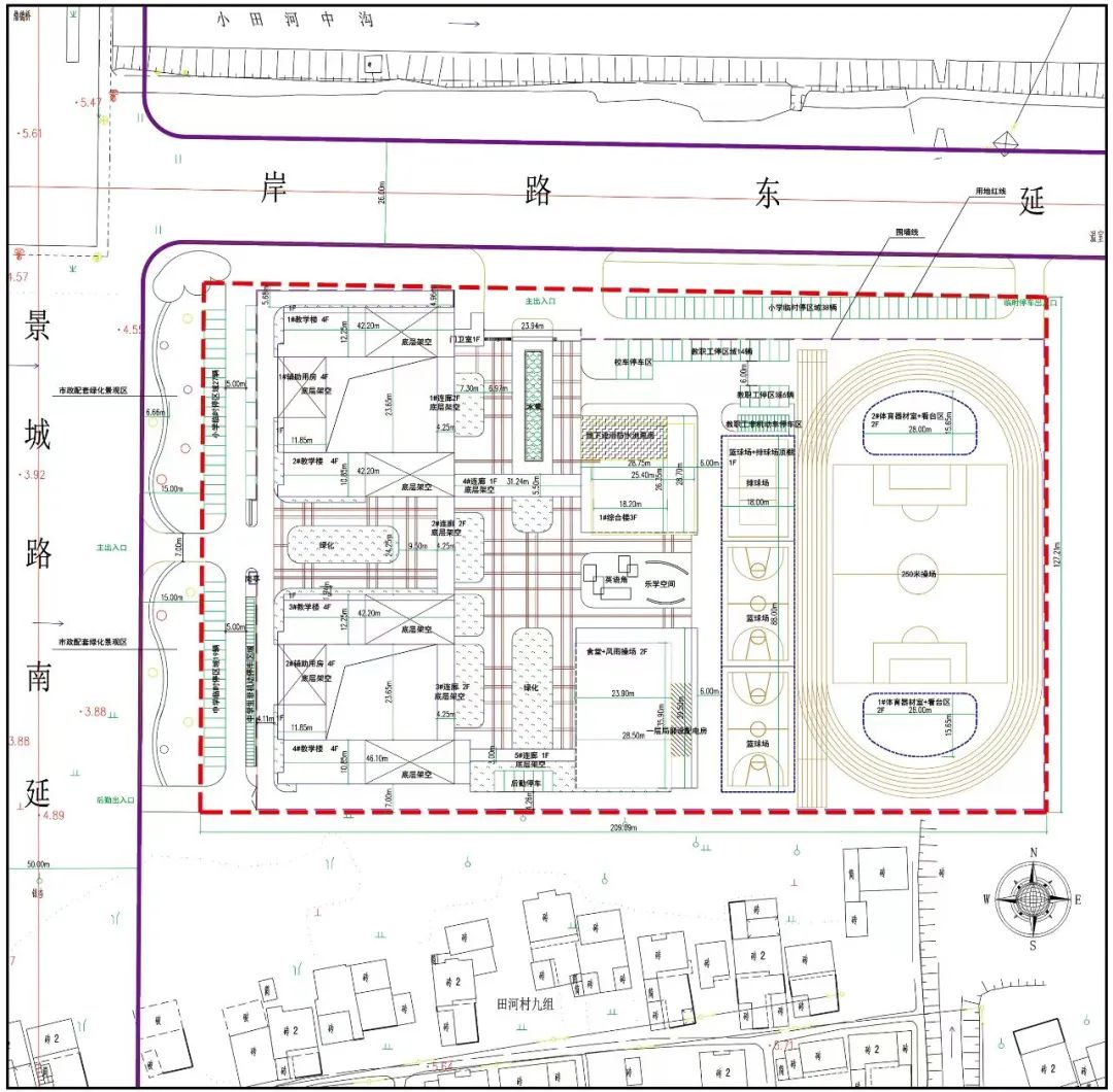
田河中小学异地重建项目

△田河中小学异地重建项目红线图
根据项目建设用地规划许可证,田河中小学异地重建项目位于泰州医药高新区(高港区)口岸街道田河社区境内,具体位置为口岸街道景城路南延东侧、水岸路东延南侧。用地总面积26906平方米,总建筑面积16260平方米,土地取得方式为划拨。

根据前期的规划公示,该项目规划建设教学楼、综合楼、英语角、乐学空间、食堂+风雨操场、篮球场、排球场、250米操场等设施。

根据2022年4月的批复, 项目占地面积约27000平方米,建筑面积约13000平方米,拟建规模为小学3轨18班、初中2轨6班。

分享到:  QQ好友和群QQ好友和群 QQ空间QQ空间 腾讯微博腾讯微博 腾讯朋友腾讯朋友
收藏收藏 分享分享 支持支持 反对反对
您需要登录后才可以回帖 登录 | 注册

本版积分规则

公司信息
关于我们
诚聘英才
网站声明
xml地图
用户帮助
会员规则
商务合作
合作方式
商家入驻
联系我们
获取更新
新浪微博
腾讯微博
手机客户端二维码
太灵通微信二维码
泰州 | 房产 | 家装 | 美食 | 论坛 |
关于我们 | 合作方式 | 诚聘英才 | 网站声明 | 联系我们 | 访问统计
Copyright © 2009 - 2019 泰州未来网络科技有限公司. All Rights Reserved
增值电信业务经营许可证:苏B2-20190103 苏ICP备18045299号
太灵通常年法律顾问:江苏戴维律师事务所 陈东 律师 15240200003
网警 信息监察 不良举报